Grundriss UG
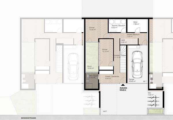
Grundriss EG

Geplanter Baustart Sommer 2025

Erstbezug voraussichtlich Sommer 2027

 

Ihr neuer Lebensmittelpunkt zwischen der Hektik des Alltags und der Ruhe der Natur.

 

3 Exklusive, nachhaltige Atriumhäuser und 2 Villen mit Pool mit hoher Energieeffizienz und innovativem Finanzierungskonzept! Sie gestalten den Kaufpreis mit!

 

Wohnen Sie gerne ruhig an einer exklusiven und einzigartigen Lage?

Möchten Sie all die Dinge, die Sie im Alltag benötigen bequem zu Fuss erreichen können?

Wollen Sie Ihr Heim individuell gestalten und Ihren Traum vom Eigenheim verwirklichen?

Dann sind Sie an der Benkenstrasse/Tellerweg in Binninngen an der richtigen Adresse.

 

Die modernen, hochwertigen und freistehen­den 3 Atrium-Einfamilienhäuser und 2 Villen, in einem der schönsten Quartiere von Binningen, bieten Ihnen eine grosse Vielfalt, um Ihren persönlichen Ansprü­chen gerecht zu werden. Die Bebauung liegt an zentraler und ruhiger Lage und ist durch das Tram mit der Stadt Basel verbunden. Die besondere Lage nutzt einerseits die Ruhe des Landlebens, andererseits die Vorteile der Stadtnähe. Weite Grünflächen, eine gute Infrastruktur mit Schulen, Kindergärten und eine gute Erschliessung durch öffentliche Verkehrsmittel runden den Standort ab.

 

Das Fassadenkonzept bietet eine Flexibili­tät an Grundrissindividualität. Die murale Fassade wird unterbrochen, in welchen die Fenster zu liegen kommen. Die Fassa­den, welche sich zugewandt sind, sind in Abwechslung offen oder geschlossen, so dass möglichst keine Einblicke entstehen und die Privatsphäre gewährleistet ist.

Die Einzigartigkeit der Häuser/Villen entsteht durch das Atrium über die gesamte Gebäudehöhe. Dieses ermöglicht die Natur „ins Gebäude“ zu holen. Die Platzierung im Süden des Gebäudes lässt mit Hilfe des Sonnenlichtes span­nende lichtdurchflutete Ein- und Durchbli­cke entstehen. Überhohe Räume und ein gross­zügiger, gedeckter Sitzplatz, welche den ebenerdigen Zugang zum Garten ermögli­chen, unterstreichen diese Gesamtsituation.

Die Villen verfügen über eine Autoeinstellhalle mit je 2 Parkplätzen. Ein Besucherparkplatz steht jeder Villa an der Strasse zur Verfügung.

Die Ausstattung der Häuser/Villen in Hinsicht auf Bodenbeläge, Wandgestaltung, Bäder- und Küchenausstattung werden vom Käufer aktiv mitbestimmt. Die Architektenauswahl dient bei der Realisierung als Vorschlag und ist Grundlage der einzelnen Budgetpo­sitionen. Individuelle Wünsche und Anpas­sungen sind natürlich möglich.

Die Innenräume bestechen durch ihre redu­zierte Formensprache und der Natürlichkeit der verwendeten Materialien. Die in allen Wohnräu­men verlegte Fussbodenheizung mit Einzel­raumsteuerung sorgt an kalten Tagen für wohlige Wärme.

Jedes Haus/Villa wird mit einer Erdsonden- Wärmepumpe beheizt. Die Raumheizung erfolgt über eine Niedertemperatur-Fussbo­denheizung mit Raumtemperaturregelung. Im Sommer wird das Heizsystem umgekehrt und als Freecooling zur passiven Kühlung der Räumlichkeiten genutzt.

 

Der geplante Baubeginn erfolgt im Sommer 2025. Die Fertigstellung und der Bezug der Häuser/Villen erfolgen voraussichtlich im Sommer 2027

 

Bei Rückfragen stehen wir Ihnen sehr gerne telefonisch oder in einem unverbindlichen Beratungsgespräch persönlich zur Verfügung.

 

Herr Giovanni Ferrara, 078 866 90 68 oder

Frau Susanne Schnell-Gerner, 061 266 10 28